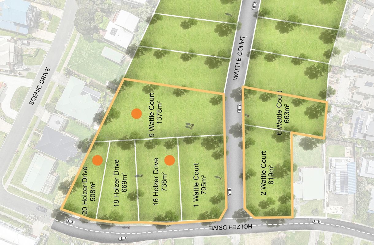
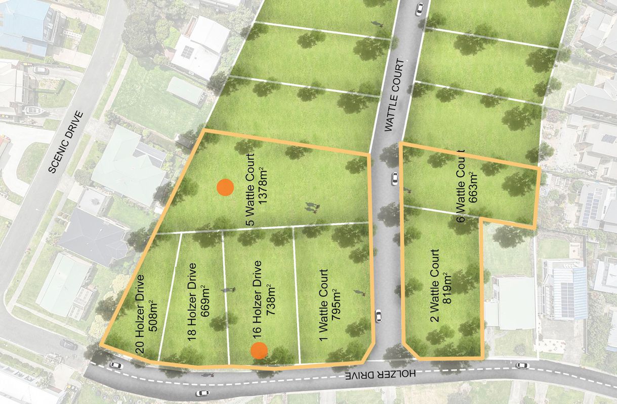
Holzer Drive - Stage 4, Apollo Bay
| 0 Beds | 0 Baths | Approx 36871 Square metres |
To inspect, please email [email protected] or call lead Agent.
Discover Your Dream Location: 7 land parcels in total - TWO UNDER OFFER!!
Welcome to your future neighborhood! Nestled in a prime location, this exclusive 7-lot subdivision offers an unparalleled opportunity to build the home you've always dreamed of.
KEY FEATURES:
• Spacious Parcels: Generous land sizes provide ample space for your dream home, garden, or outdoor entertainment area.
• All Services Ready: Power, water, sewer, and telecommunications services are available, making the building process seamless.
• Titles Forecast December 2025: Secure your lot now and start planning with confidence!
• Prime Location: Perfectly situated close to school, town centre, beach and community amenities. Enjoy both convenience and tranquility.
• Priced to Sell: These lots are competitively priced, offering exceptional value in today’s market.
Whether you're looking to build your forever home or invest in a growing area, this subdivision is your chance to create something special.
Don’t miss out! With only 5 lots now available, demand will be high. Contact us today to secure your piece of paradise.
13 Wallaces Road, Barwon Downs
